Schleswig-Holstein
3636351

Erdgeschoss: 2-Zimmer, Terrasse am parkähnlichen Garten in Kiel - Nahe FH Kiel

Kaufpreis
120.000
Provision
3.57
% (inkl. gesetzlicher MwSt.)
Wohnfläche
42
Grundstücksfläche
6.915
Zimmer
2
Schlafzimmer
1
Badezimmer
1
Balkon / Terrasse
17,33
Baujahr
1955
Verfügbar ab

Ausstattung

Keller
Balkon / Terrasse
als Ferienwohung geeignet

Objektbeschreibung

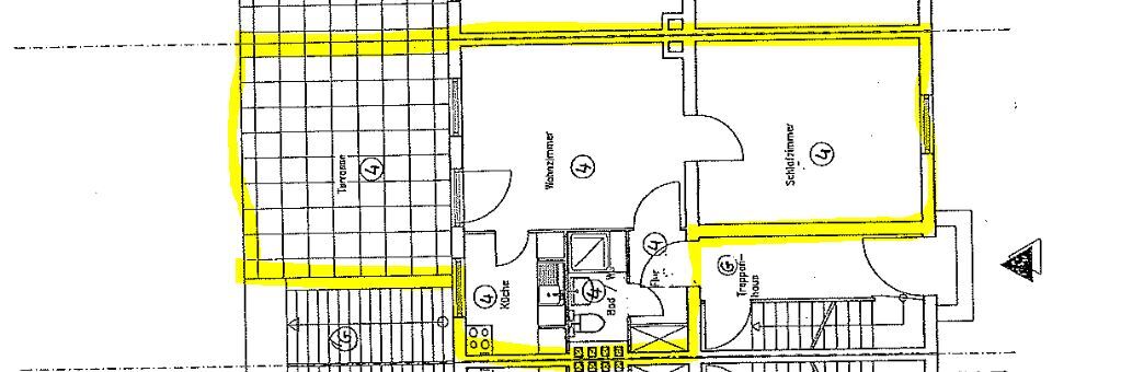
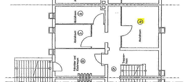
Die schöne 2-Zimmer-Eigentumswohnung mit Terrasse im Sondernutzungsrecht und einem Kellerabstellraum befindet sich in der Marienwerderstraße im Kieler Stadtteil Ellerbek-Wellingdorf. Die gut geschnittene Wohnung befindet sich im Erdgeschoss eines Reihenmittelhauses mit drei Wohnparteien und hat eine Wohnfläche von rd. 42 m². Sie verfügt über ein Schlafzimmer, ein Badezimmer, einen Wohnbereich, eine Küche und einem Duschbad. Highlight der Wohnung ist der Terrassenzugang mit direktem Zugang zum parkähnlich angelegten Garten. Dies schöne weitläufige Rasenfläche mit Baumbestand gehört zur WEG und ist Gemeinschaftseigentum. Auf der Terrasse können Sie Entspannen und schöne, erholsame Stunden mit einem wunderbaren Blick ins Grüne verbringen. Die Wohnung befindet sich zwischen der FH-Kiel und dem Kieler Zentrum. Daher ist die Wohnung interessant für vielfältige Interessentengruppen, ob Single oder Paar. Die Erdgeschosslage mit Terrasse bietet altersgerechte Wohnmöglichkeiten. Für die StudentInnen der FH-Kiel ist die Nähe zur Fachhochschule und Stadt und die Ruhe fürs Lernen interessant. Die Wohnung ist derzeit vermietet. Die Bruttomiete beträgt 426 EUR/ Monat inkl der umlegbaren Kosten von rd. 114 EUR.. Gemäß des vorliegenden Wirtschaftsplans 2024 sind folgende Nebenkosten zu berücksichtigen: Die umlegbaren Kosten an die Mietpartei betragen zurzeit rd.114 EUR/Monat (inkl. Heizkosten). Die nicht umlegbaren Kosten (u.a. Kosten für die Verwaltung und die Zuführung zur Erhaltungsrücklage) der Wohnung betragen 88 EUR/Monat. Das monatliche Hausgeld beträgt insgesamt 202 €. Die Wohnung befindet sich auf einem 6.915 m² großen Grundstück in Kiel. Die Ausstattung ist normal, der Bodenbelag besteht aus Laminat und Fliesen. Ein Kellerraum gehört ebenfalls zur Wohnung. Sie gerne einen Besichtigungstermin vereinbaren. Wir freuen uns auf Ihre Anfrage.

Lage

Die Immobilie befindet sich in Kiel, der Landeshauptstadt von Schleswig-Holstein mit rund 246.000 Einwohnern. Die Universitätsstadt bietet ein breites Spektrum an Kultur, Freizeit, Bildung und Sport. Das Verkaufsobjekt befindet sich in der Marienwerderstraße in Kiel - Wellingdorf. Die Innenstadt und die Kieler Förde sind mit dem Fahrrad in ca. 10 Minuten zu erreichen. Die Anbindung an den öffentlichen Nahverkehr ist sehr gut. Die nächste Bushaltestelle ist ca. 200 Meter entfernt. Von hier aus erreichen Sie den Kieler Hauptbahnhof in ca. 15 Minuten. Hier einige Lageparameter: FH Kiel 5,6 km Kiel Hauptbahnhof 2,3 km Theodor-Storm-Schule 1,0 km' Bäcker 0,3 km Allgemeinarzt 0,5 km Apotheke 0,4 km Segelhafen 0,4 km Alle wichtigen Einrichtungen sind gut zu Fuß oder mit kurzen Rad- und Buswegen zu erreichen. Die Fachhochschule Kiel, der Kieler Yachthafen und der Segelhafen Wellingdorf sind in unmittelbarer Nähe. Über die B 502 haben Sie eine sehr gute Anbindung mit dem Pkw Richtung Kieler Innenstadt und Richtung der schönen Ostseestrände und -orte wie Laboe und Schönberg. Die Lebensqualität wird durch die Vielfältigen Angebote vor Ort deutlich gesteigert.

Energieausweis

Energie­ausweistyp
Verbrauchsausweis
Grundstücksfläche
6.915
Endenergiebedarf
107
kwh/(m²*a)
Primärenergieträger
Fernwärme
Energieeffizienzklasse
D
Balkon / Terrasse
17,33
Erstellt am
ab 1. Mai 2014
Gültig bis
08.01.2029

Weitere Informationen

Energetischer Zustand des Gebäudes: Es liegt ein verbrauchsabhängiger Energieausweis vom 8.1.2019 vor: Bitte respektieren Sie die Privatsphäre der Bewohner*innen. Das Betreten des Grundstückes und die Kontaktaufnahme bei den Bewohner*innen ist ausdrücklich nicht gewünscht. Eine Besichtigung erfolgt nur nach Absprache mit uns - Baltic Home Immobilien. Vielen Dank. Alle Angaben sind ohne Gewähr und basieren ausschließlich auf Informationen, die uns von unserem Auftraggeber übermittelt wurden. Wir übernehmen keine Gewähr für die Vollständigkeit, Richtigkeit und Aktualität dieser Angaben. Zwischenverkauf bleibt vorbehalten.

Interessieren Sie sich für diese Immobilie?

Hier geht es zum Datenschutz.
Vielen Dank!
Wir haben Ihre Anfrage erhalten und melden uns in Kürze bei Ihnen.
Da ging wohl etwas schief. Bitte versuchen Sie es später nochmal oder schreiben Sie uns direkt unter info@baltic-home-immobilien.de
offene Tür in einer Altbau-Wohnung